윤곽도

기하공차 중 가장 독특한 기하공차라고 한다.
데이텀을 붙여도 되고 안붙여도 되는 특이한 기하공차 (물론 의미는 달라짐)
| 진원도 (2D) | 원통도 (3D) |
| 원주 흔들림 (2D) | 온 흔들림 (3D) |
| 진직도 (2D) | 평면도 (3D) |
| 선 윤곽도 (2D) | 면 윤곽도 (3D) |
- 선 윤곽도는 공차역이 깊이 값이 없는 평면 형태(면적)로 생기고
- 면 윤곽도는 공차역이 부피 값을 가지는 형태(공간)로 생긴다.
- 윤곽도에는 MMC/LMC 모디파이어 사용 불가 (데이텀 MMB/LMB는 가능)
- 윤곽도는 외형선 따라서 만들어지는 기하공차이기 때문에 별, 하트 등 다양한 모양이 가능하다.
면 윤곽도

- 윤곽도의 적용을 받는 치수는 기본치수로
- 외형선 자체가 윤곽도 공차역의 기준으로 쓰이므로 기본치수로 쓰임
- 형상이 이 폭이 3mm인 공차역 부피 공간 안에 들어오면 합격
- 현재, 데이텀 참조가 없으므로 공차역의 위치가 공간상 구속되어 있지 않기 때문에 공차역을 움직일 수 있음
- 움직여서 공차역 공간안에 들어오는지를 판단 가능
- 면 윤곽도는 이 하나의 공차역(공간) 안에 모든 형상(점)이 다 들어와야 함
선 윤곽도

- 선 윤곽도의 공차역은 깊이가 없는 영역
- 각 단면에서의 공차역이 독립적이다 = 매번 새로 도출된다.

위처럼 모든 단면이 각각 다 공차역 면적 안에 들어오면 합격
이전 공차역이 이후 공차역(뒤 새로운 단면)을 검사할때 영향을 미치지 않는다.
선 윤곽도, 면 윤곽도 차이

극단적인 예시로 위 형상은 면 윤곽도일 경우 불합격이지만 선 윤곽도 공차일 경우 합격이다.
데이텀이 있는 경우 윤곽도
위치를 규정하기 위해 데이텀을 사용

- 해석) 10.0, 4.3의 위치에서 가로 9.5, 세로 8.5, 높이 10 크기 형상의 폭이 3.0인 공차역(분홍선)을 가지는 홀 형상의 윤곽도
- 외형과 관련되어있는 치수들은 윤곽도 때문에 기본 치수를 표시해야 함
- 위치가 어디인지 확인하기 위해 데이텀을 참조함
윤곽도 기호
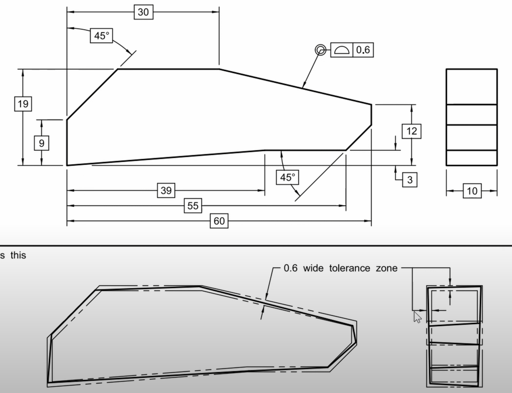
○ (All Around)

윤곽도 화살표에 사용된 원의 의미
하나에 국한되는것이 아니라 전체 면에 다 적용된다.

All around 적용시 아래와 같이 공차역이 생성된다.

◎ (All Over)

All around의 기호에서 원하나가 더 있을시 모든 면 전체 형상(3D)으로 적용된다.

면 윤곽도 예시에 All over 적용시 높이 치수를 기본치수로 변경해야하고
공차역은 아래 오른쪽 그림과 같이 전체 모든 면의 형상을 가지는 공차역을 가지게 된다.

All Around와 All Over 차이점
All around는 사용한 특정 면 기준에 대해 형상을 제어하고,
All over를 사용하면 전체 면(정면, 배면, 평면, 저면, 좌측, 우측면)에 대해 형상을 제어한다.
U 모디파이어
Unequally - disposed의 약자로 뜻은 불평등한 배치? 처리이다.
윤곽도 지정시 양측으로 공차를 주는데 서로 다른 공차를 부여한다.
ASME Y14.5 - 2018 11.3.1.2
재료가 추가되는 방향으로 공차역을 부여한다.
External Feature(밖으로 튀어나온 형상)의 경우 바깥으로 먼저 부여,
Internal Feature(안으로 들어간 형상)의 경우 안으로 먼저 부여

3.0의 폭을 가진 공차역을 생성할때 바깥(재료가 추가되는 방향)으로 2.0 안으로 1.0의 공차역을 할당
윤곽도와 다른 모양공차의 차이점

위 사진에서 형상이 원이면 윤곽도와 진원도/원통도랑 차이가 없다고 생각할 수 있지만 차이점이 있다.
- 진원도 / 원통도 = 공차역의 크기가 정해져있지 않음(내원과 외원 사이의 간격만 일정하면 그만이기 때문)
- 윤곽도 = 공차역의 크기가 정해져있음
- 그렇기 때문에 모양공차에서 진직/평면/진원/원통에 있는 공차역을 기본공차로 설정하고 싶다면 윤곽도 공차로 변경하면 된다.
Youtube TeleV2 신입사원 도면강좌 34~35
'CAD' 카테고리의 다른 글
| BCD / 홀 종류,표기법,깊이 (1) | 2024.12.26 |
|---|---|
| 흔들림 공차(원 흔들림, 온 흔들림) (2) | 2024.12.25 |
| 자세공차(평행도,직각도,경사도), 기본치수 (0) | 2024.12.23 |
| MMB (1) | 2024.12.23 |
| 모양공차 (진원도,원통도,진직도,평면도), 모양공차 오답 케이스 (2) | 2024.12.23 |